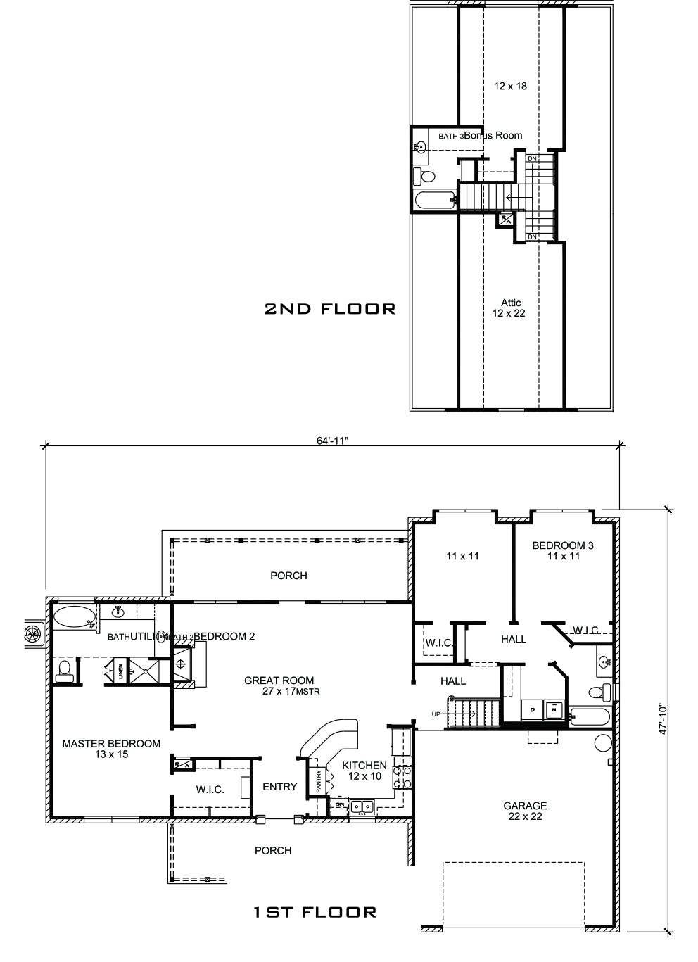
The Augusta – Plan 403 The Augusta Plan 403 2 Stories, 3 Bedrooms, 3 Baths Attached garage Total living: 1840 s.f. First Floor: 1559 s.f. Second Floor: 281 s.f. The Augusta Plan 403