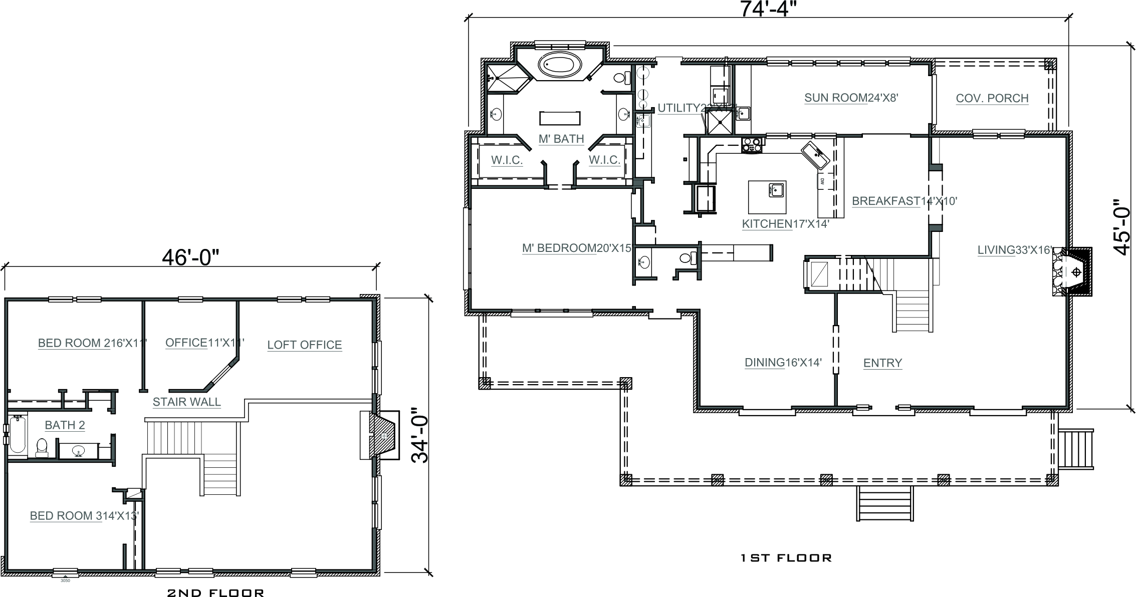
The Fryer Plan 20 The Fryer Plan 20 3 Bedrooms, 2 1/2 Baths, Total living: 3718 s.f. First Floor: 2727 s.f. Second Floor: 991 s.f. The Fryer Plan 20