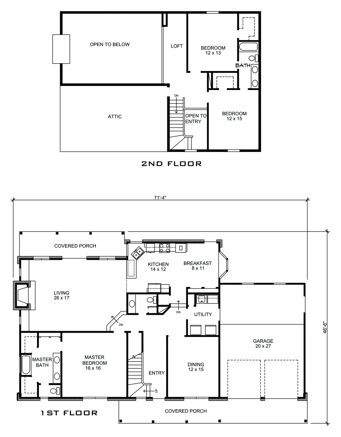
The Lockhart Plan 262 The Lockhart Plan 262 2 stories, 3 Bedrooms, 2 1/2 Baths, Attached garage, Total living: 2444 s.f. First floor: 1767 s.f. Second floor: 687 s.f. The Lockhart Plan 262