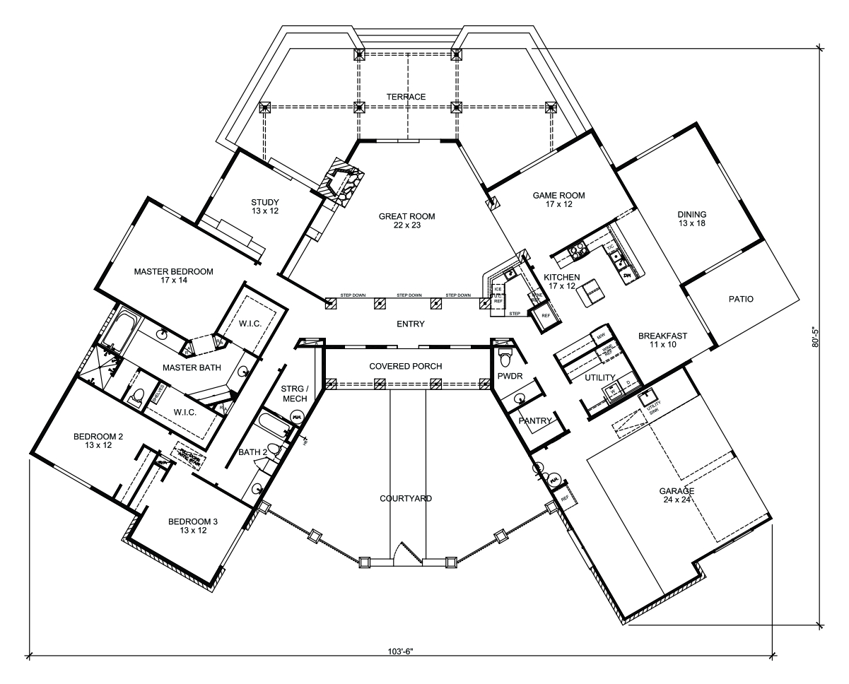
The Meadow Lark Plan 416 The Meadow Lark Plan 416 Wings, Courtyard & Terrace, 3 Bedrooms, 2 1/2 Baths, Total living: 3302 s.f. The Meadow Lark Plan 416