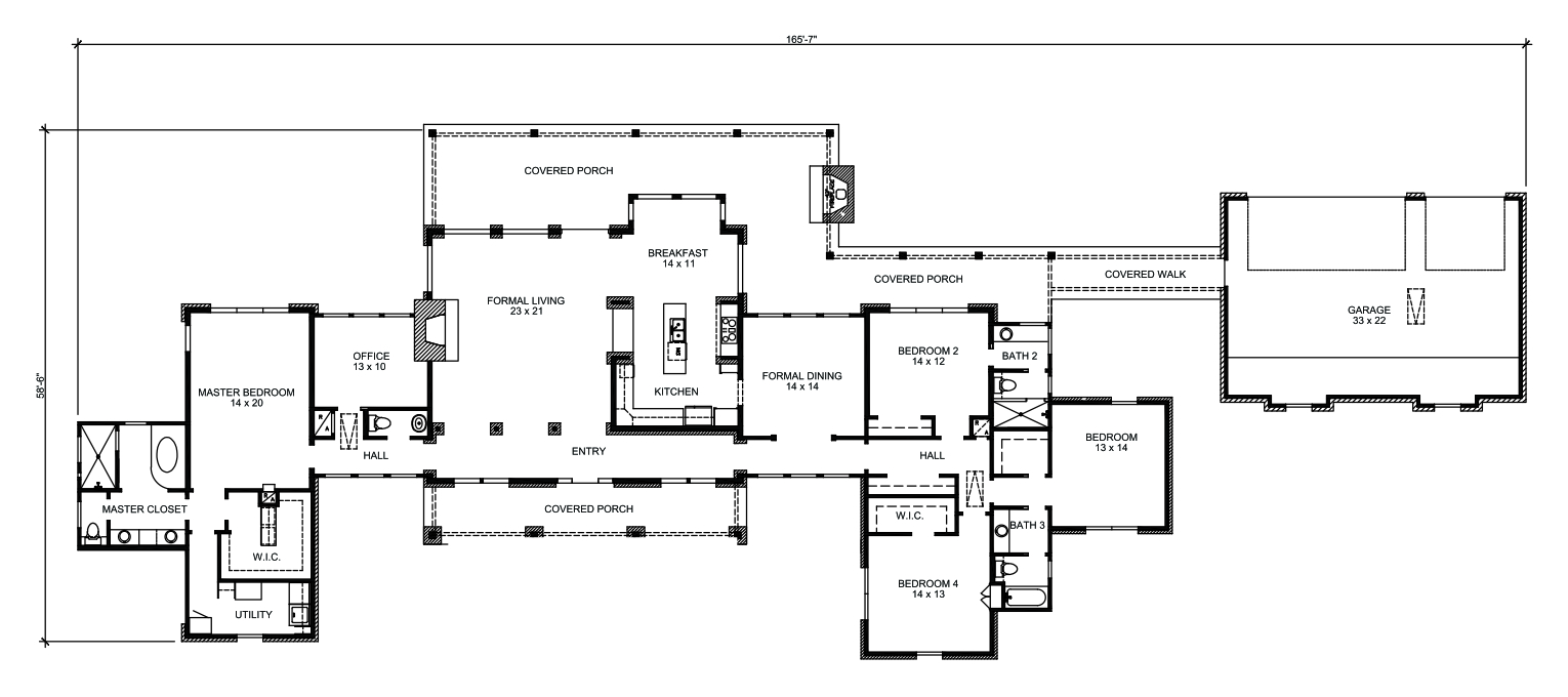
The Riverwood Plan 348-V2 The Riverwood Plan 348-V2 4 Bedrooms, 3 1/2 Baths, Total living: 3325 s.f. The Riverwood Plan 348-V2